Skip to content Skip to footer

Villa in stile Classico / Moderno

ClientePrivatoDataSettembre, 2021Dimensionec.a 90mqShare
Restyling di un appartamento di 90mq a Bergamo

Questo progetto non è un vero e proprio restyling, infatti siamo stati chiamati per progettare gli interni di una casa a schiera di nuova costruzione. Il nostro intervento si è quindi limitato alla progettazione di alcuni spazi della casa che sarebbero risultati inutilizzabili ed all’inserimento degli arredi scelti dal committente ad alcuni scelti da noi, in modo che potessero dialogare correttamente. Lo stile scelto per questa Villetta a schiera è un Classico / Moderno. una fusione affascinante di elementi tradizionali e linee contemporanee, creando spazi che emanano eleganza e raffinatezza senza tempo. Questo approccio all’interior design combina la bellezza delle forme classiche, come colonne, cornici e dettagli ornamentali, con un’estetica minimalista e funzionale tipica del design moderno.

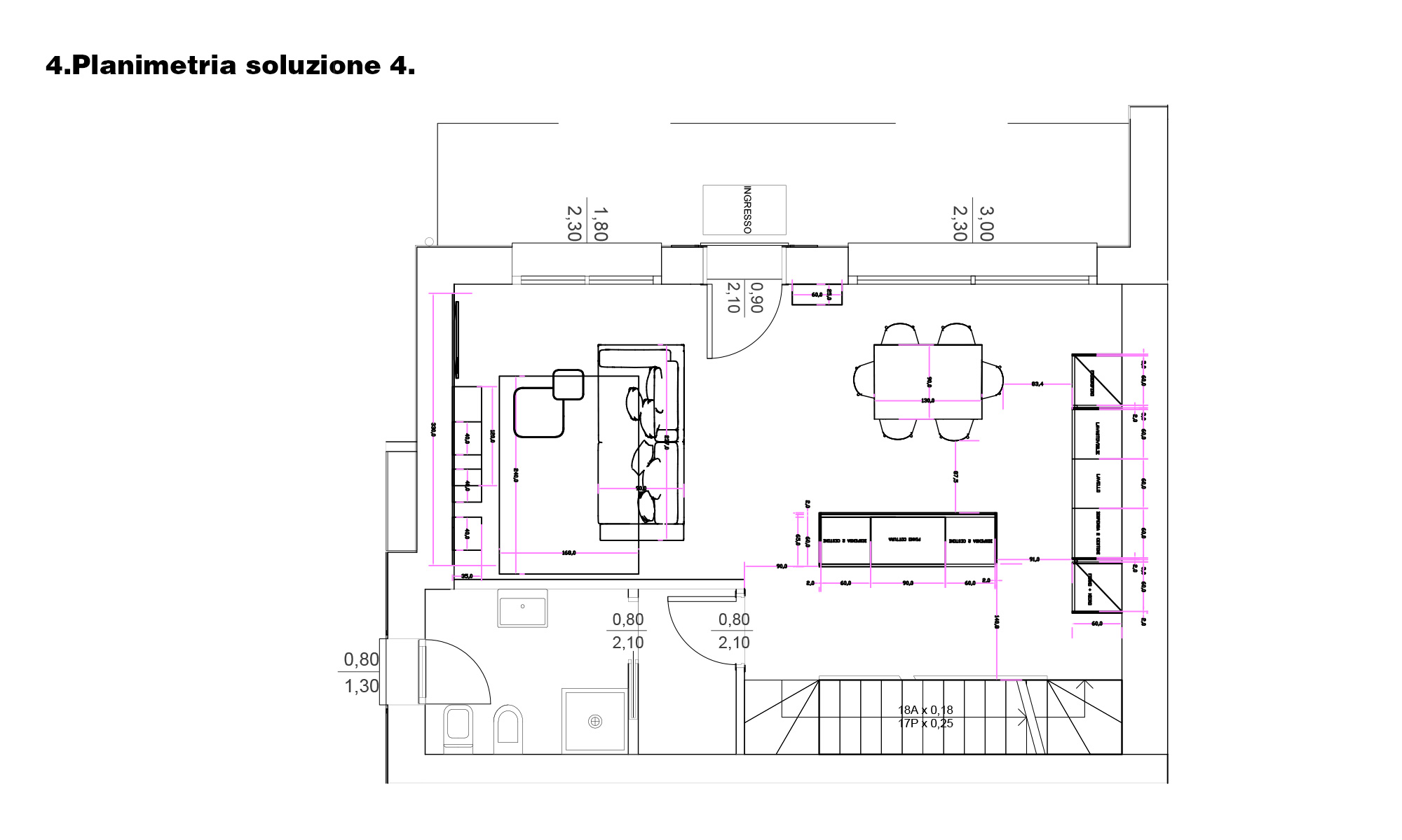
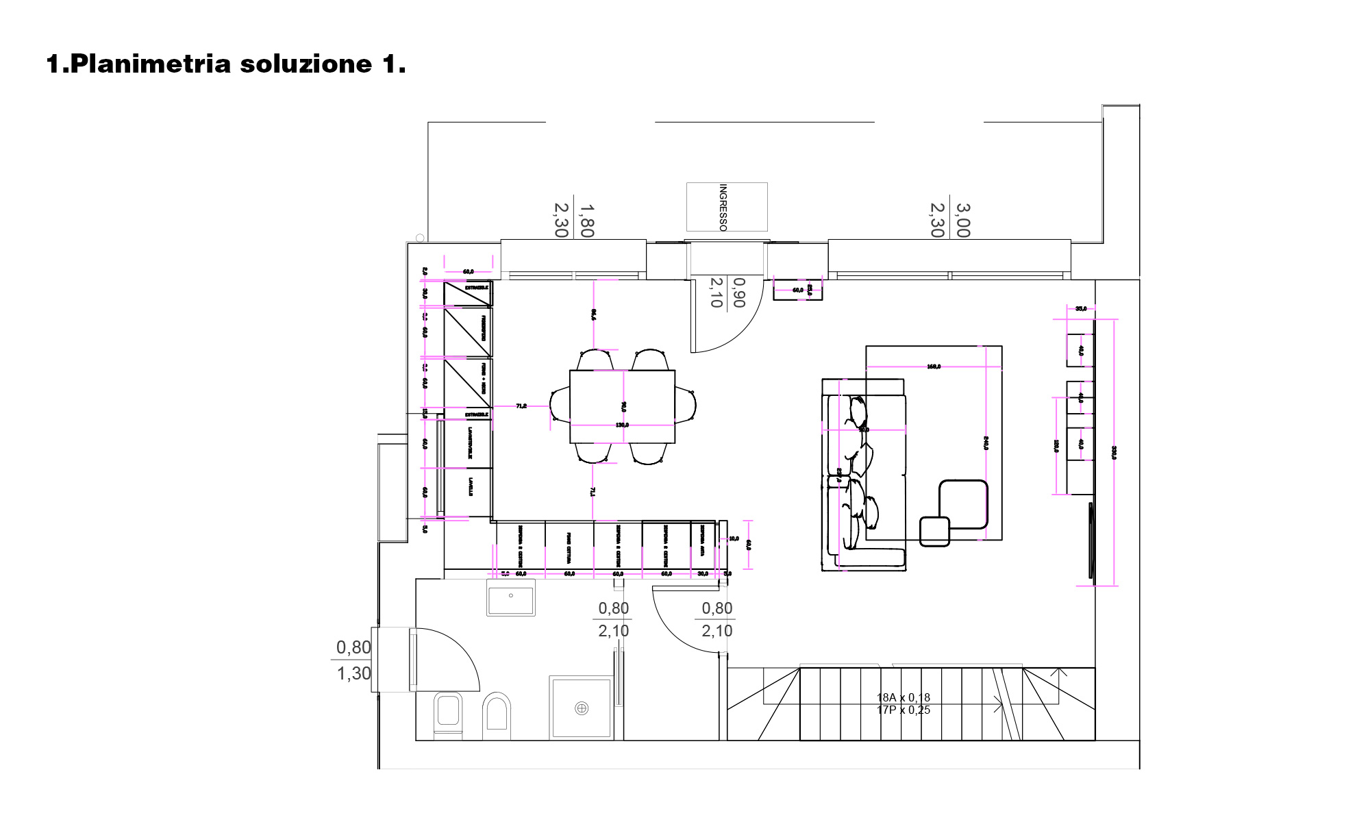
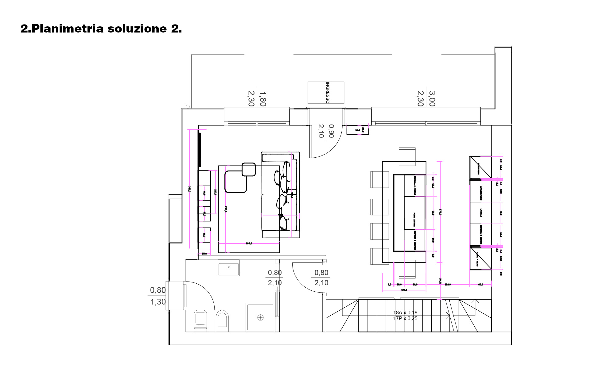
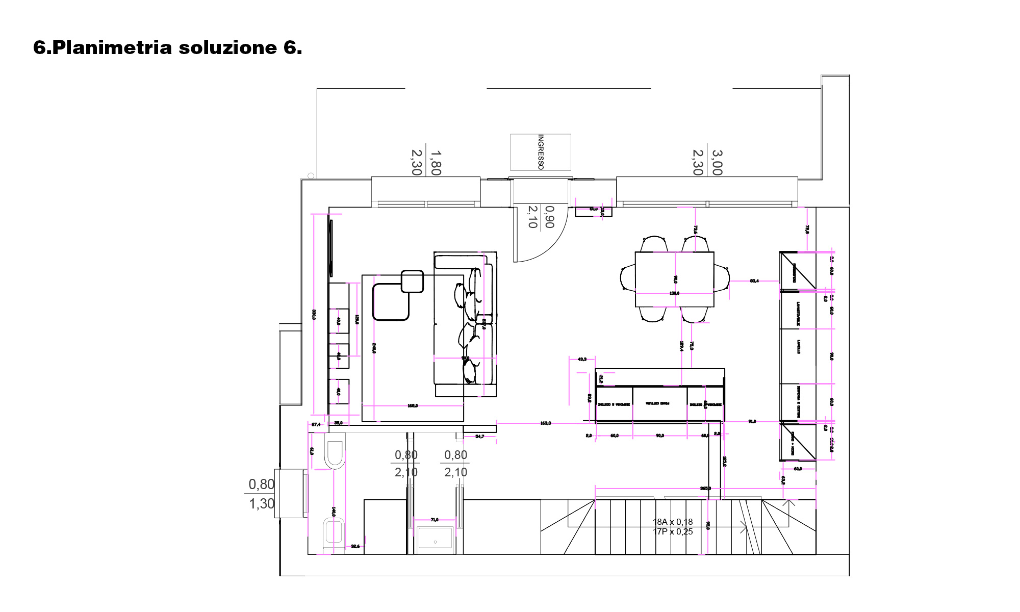
L’abitazione è una villa a schiera di testa, libera su 3 lati, divisa su due piani, così suddivisa: soggiorno open space con cucina, bagno di servizio, due camere da letto, bagno principale, cameretta giochi e studio. Di pertinenza del fabbricato anche un garage ed un giardino, del quale abbiamo in seguito fatto un progetto che potete visionare a questo link.

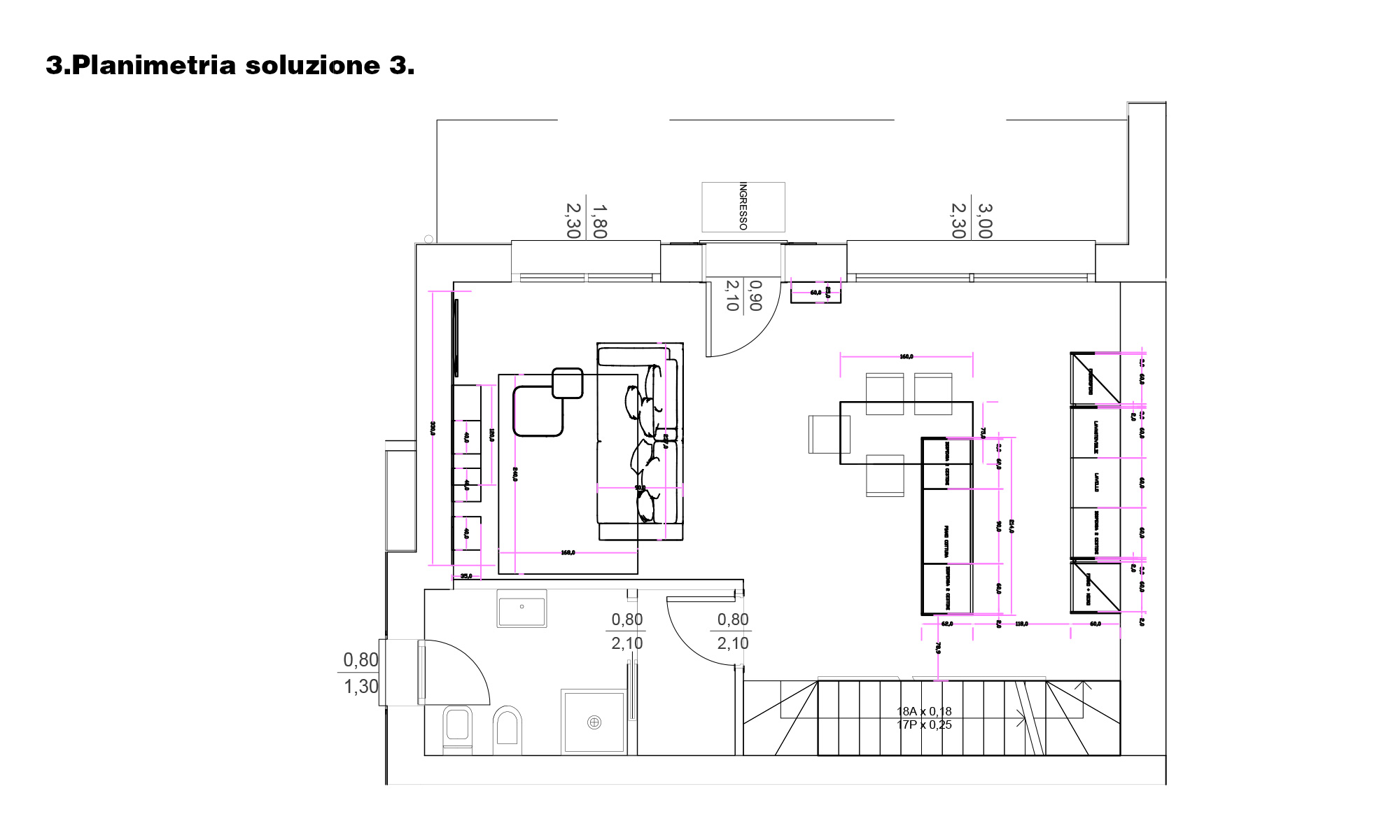
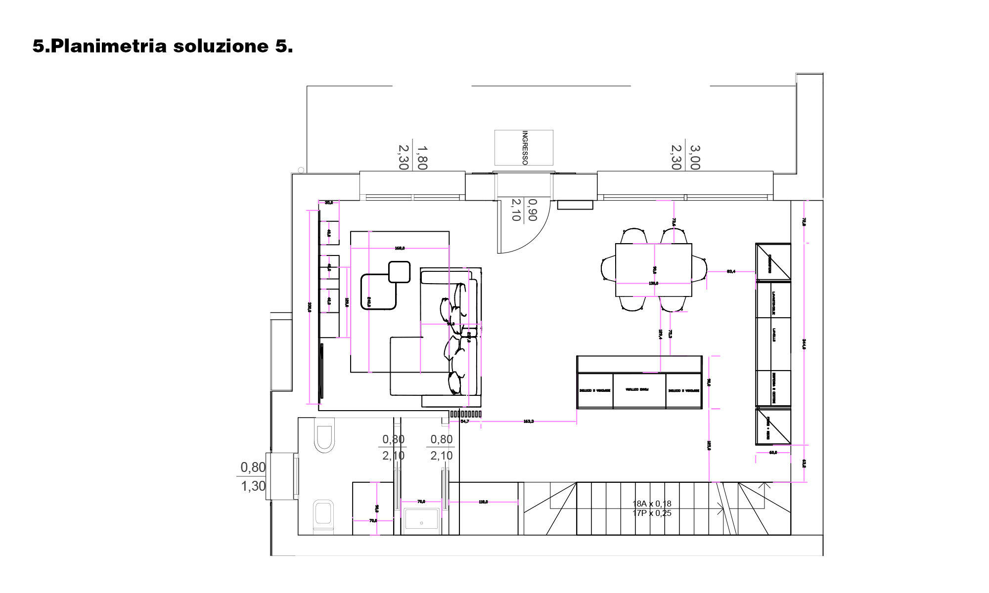
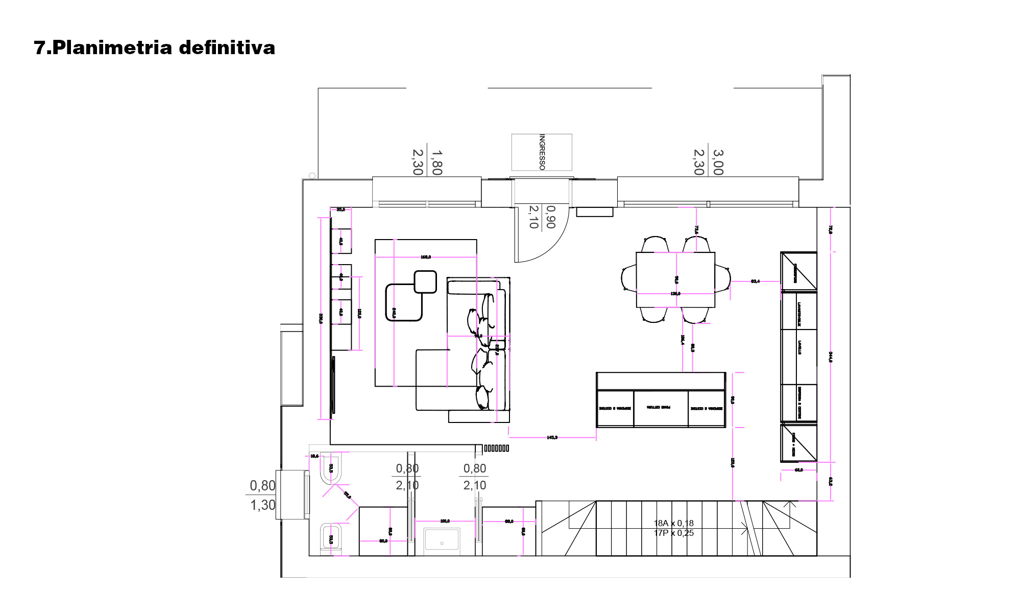
Progettazione
Rendering
Materiale tecnico
Arredamento

Il Progetto 3D

Dopo aver realizzato le planimetrie di disposizione arredi abbiamo costruito l’intero fabbricato in 3D e realizzato i Render Fotorealistici che hanno permesso al committente di vedere attraverso delle immagini da noi costruite il risultato finale della loro casa.

Render fotorealistico / Fotografia risultato finale

BeforeBeforeAfter

Il risultato finale

Progettiamo e creiamo i tuoi spazi secondo i tuoi gusti

Iscrizione newsletter
Socials

Creato da Polygona Design. Tutti i diritti sono riservati.